Prodej

Prodej pozemku se stavebním povolením u golfového resortu, 2 010 m2, Kácov

2 010 m2 Kácov, Kutná Hora, Středočeský kraj 9 980 000 Kč

O nemovitosti

Nabízíme k prodeji jedinečný pozemek o rozloze 2 010 m2 s vydaným stavebním povolením, situovaný v atraktivní lokalitě u renomovaného Panorama Golf Resort v Kácově. Tento mírně svažitý pozemek s jihozápadní orientací umožňuje výstavbu moderního rodinného domu s výhledy do přírody a na golfové hřiště.

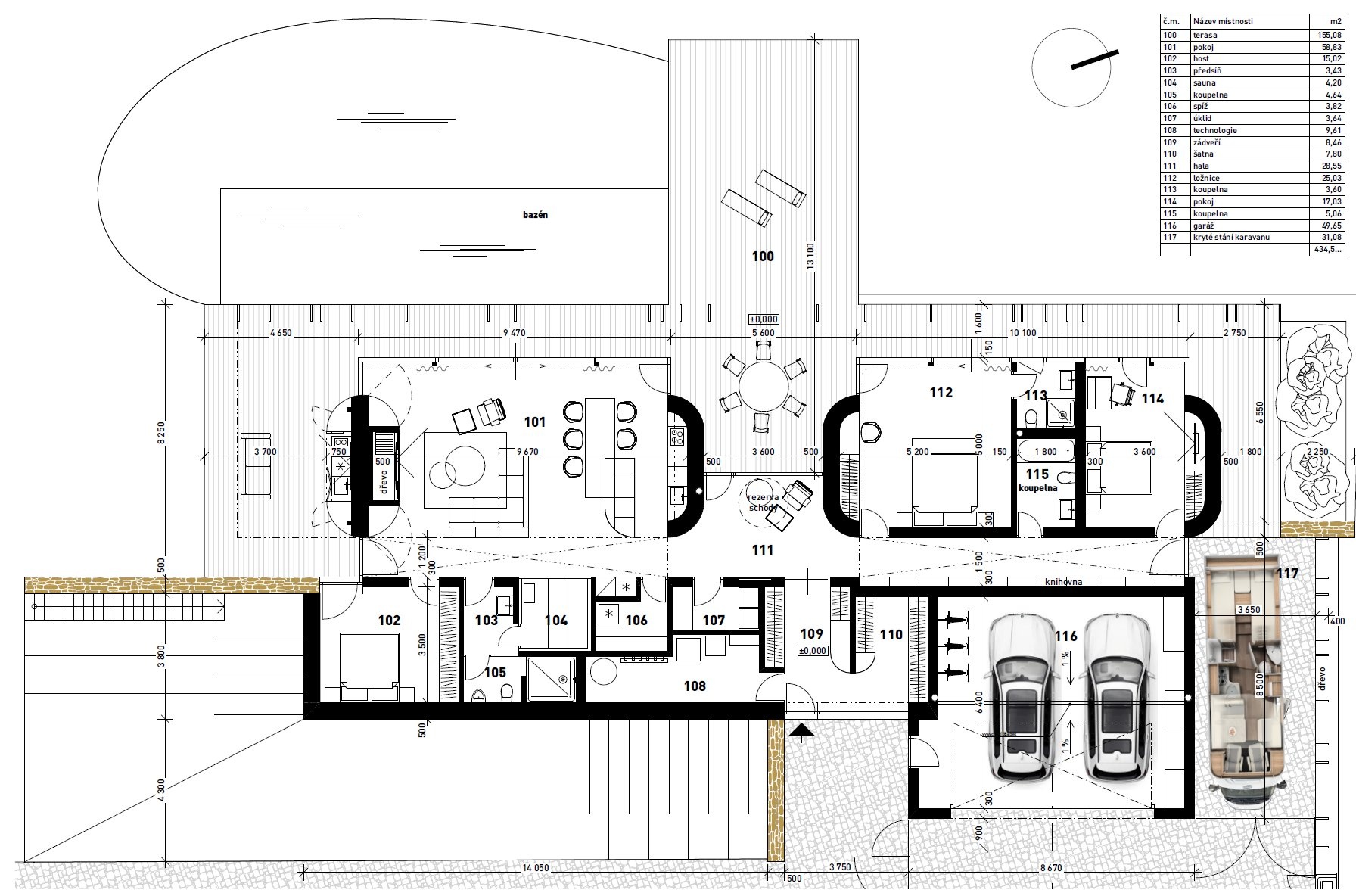
Součástí nabídky je schválený projekt pro solitérní rodinný dům určený k trvalému bydlení. Architektonické řešení reflektuje nejnovější trendy – dům je navržen jako jednopodlažní objekt s pochozí zelenou střechou a dispozicí 4+kk o celkové ploše 435 m2. Součástí je prostorná terasa, sauna, biotop, garáž pro dvě auta a velké kryté parkovací stání.

Stavba kombinuje zděnou technologii s ocelovými prvky, fasády využívají přírodní kámen a dřevo. Západní prosklená fasáda propojuje interiér s exteriérem a je chráněna vertikálními dřevěnými lamelami, které zároveň reflektují estetiku golfové klubovny. Součástí domu je tepelné čerpadlo, extenzivní vegetační střecha a řešení důrazu na udržitelnost a komfort. Pozemek má zajištěné napojení na obecní vodovod a elektro přípojku. Bližší informace a možnosti poskytneme na vyžádání.

Pozemek umožňuje dle územního plánu s koeficientem 0,4 postavit stavbu o dvou podlažích plus obytné podkroví.

Obec Kácov, nacházející se v malebné krajině Posázaví (okres Kutná Hora), je vyhledávanou lokalitou pro milovníky klidu, přírody i aktivního životního stylu. Pozemek přímo sousedí s Panorama Golf Resortem, který patří mezi nejprestižnější golfová hřiště v České republice. V resortu jsou k dispozici špičková sportovní zázemí, několik hřišť pro různé sporty, wellness, krytý a přírodní venkovní bazén.

Okolí nabízí krásné výhledy, lesy, řeku Sázavu i historické památky – včetně zámku Kácov a barokního kostela. V obci je k dispozici základní občanská vybavenost: obchody, restaurace, škola, vlakové spojení.

Dopravní dostupnost je výborná – pouhých 5 minut od sjezdu z D1 a přibližně 35 minut jízdy z Prahy.

Tato nemovitost představuje ideální příležitost pro ty, kdo hledají spojení kvalitního bydlení s přírodou a sportem. Lokalita se těší rostoucímu zájmu a nabídka podobných pozemků je velmi omezená.

Parametry nemovitosti

Číslo zakázky

N7678

Cena

9 980 000 Kč

Adresa

Kácov, Kutná Hora, Středočeský kraj

Druh

Pozemky

Kategorie

Bydlení

Plocha pozemku

2 010 m2