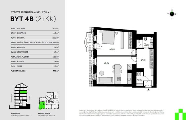
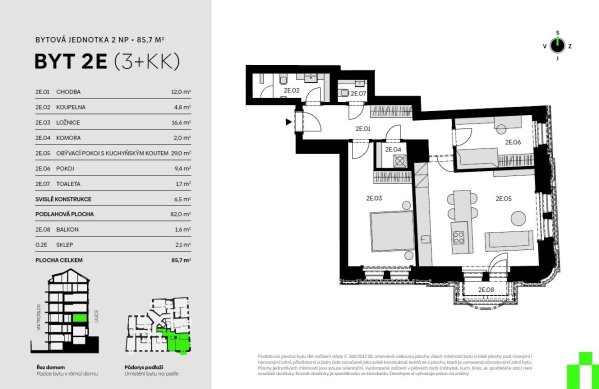
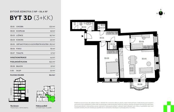
Reality / Sale / Apartments

Sale Apartments

Looking for Apartments for rent?

Choose your desired property and contact us to arrange an appointment. In category Apartments we have selected for you the following properties .

Our specialists will also be happy to answer any questions.

We look forward to meeting you!