Sale

Sale of a villa, 239 m², on a plot of 1644 m², Prague 4 - Modřany

239 m2 Na Floře, Praha 12 - Modřany Reserved

About real estate

We offer for sale a three-story villa from the 1930s in a quiet part of Prague - Modřany. The villa with a beautiful garden with mature trees ensures maximum privacy and breathtaking views of the surrounding area. The villa stands on a sloping plot of 1,644 m² and offers a floor area of 239 m².

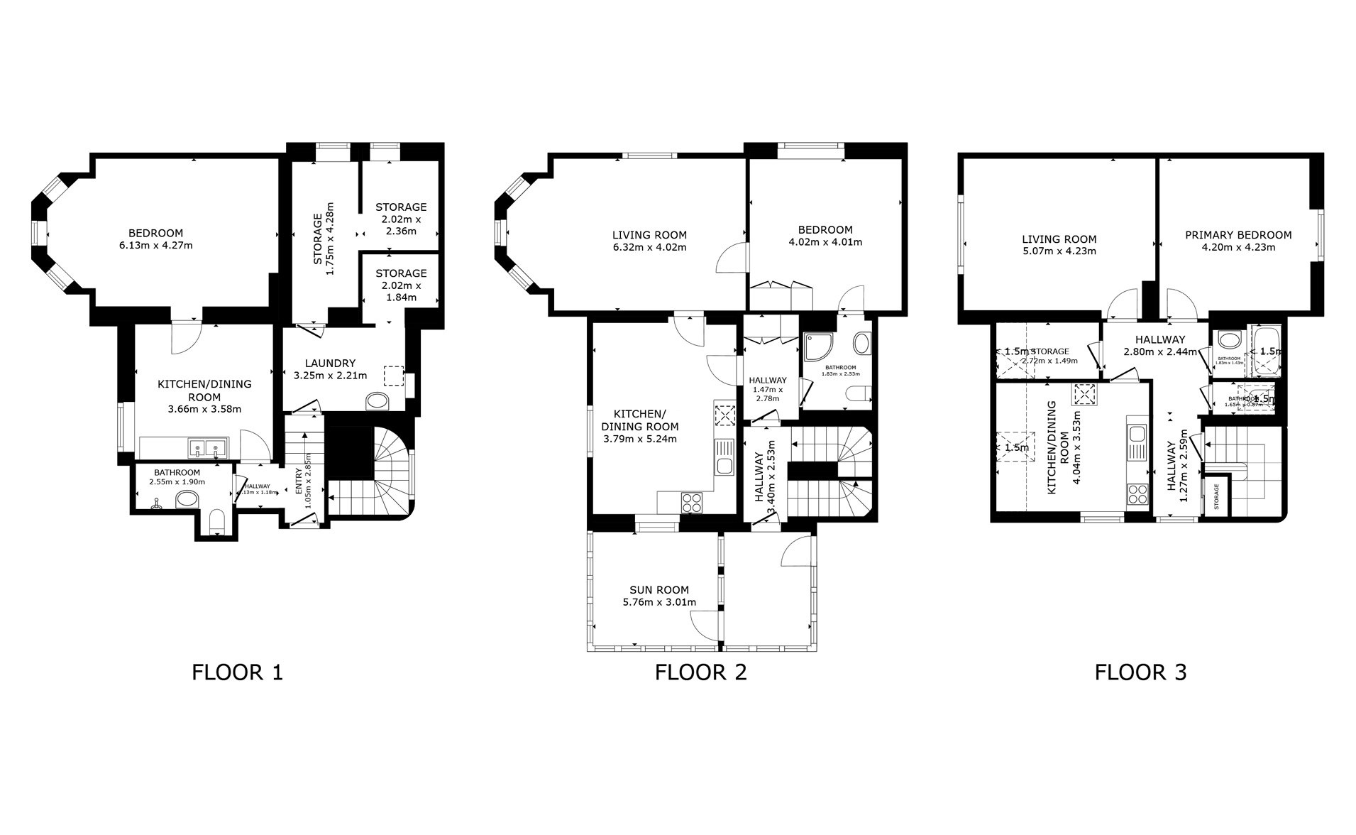
The house has three above-ground floors connected by an internal staircase, each of which currently serves as a separate residential unit.

The first floor consists of a room (26 m²), kitchen (13 m²), bathroom with shower and toilet, hallway, utility room, and cellar (16 m²). There is also a separate terrace suitable for outdoor seating.

The second floor offers a living room with a fireplace (25 m²), a bedroom (16 m²), a kitchen (20 m²), a bathroom with a shower and toilet, a hallway, and a winter garden (17 m²) with a beautiful view of the greenery.

The third floor has a living room with a balcony (21.5 m²) with a beautiful view, a bedroom (18 m²), a kitchen (14 m²), a storage room (4 m²), a hallway, a bathroom, and a separate toilet.

The house has preserved original wooden floors and double-glazed wooden Euro windows on the first and second floors. The third floor has plastic windows and the flooring is a combination of linoleum and tiles.

Heating and hot water are provided by a gas boiler. The house is connected to the municipal water supply and sewerage system, and there is also a private well on the property.

Thanks to the sloping terrain, the garden is divided into several sections and offers a number of pleasant nooks. There is a pergola with seating, an outdoor cellar, storage space for garden tools, and space for growing vegetables, fruit, and flowers.

The property includes three separate garages, one outdoor parking space, and a lift from the garage directly to the garden, which is a great advantage.

This villa is ideal for family or multi-generational living, as well as a company headquarters.

The property is located in the quiet residential neighborhood of Modřany, which offers excellent access to the center of Prague and good public transport connections. The area is rich in leisure activities—bike paths along the Vltava River, mini golf, beach volleyball, an amusement park, restaurants, and cafés—all within walking distance.

All civic amenities are nearby.

Energy class G is temporary – the actual energy performance class of this property will be updated upon delivery of the energy label.

Property parameters

Order number

N7702

Price

Reserved

Address

Na Floře, Praha 12 - Modřany

Type

Houses

Category

Villa

Usable area

239 m2

All parameters