Sale

Sale of a land with building permit near a golf resort, 2,010 sqm, Kácov

2 010 m2 Kácov, Kutná Hora, Central Bohemia 9 980 000 CZK

About real estate

We offer for sale a unique plot of land with an area of 2,010 m² with a building permit, situated in an attractive location near the renowned Panorama Golf Resort in Kácov. This slightly sloping plot with a south-west orientation allows for the construction of a modern family house with views of the countryside and the golf course.

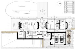
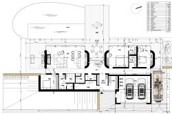
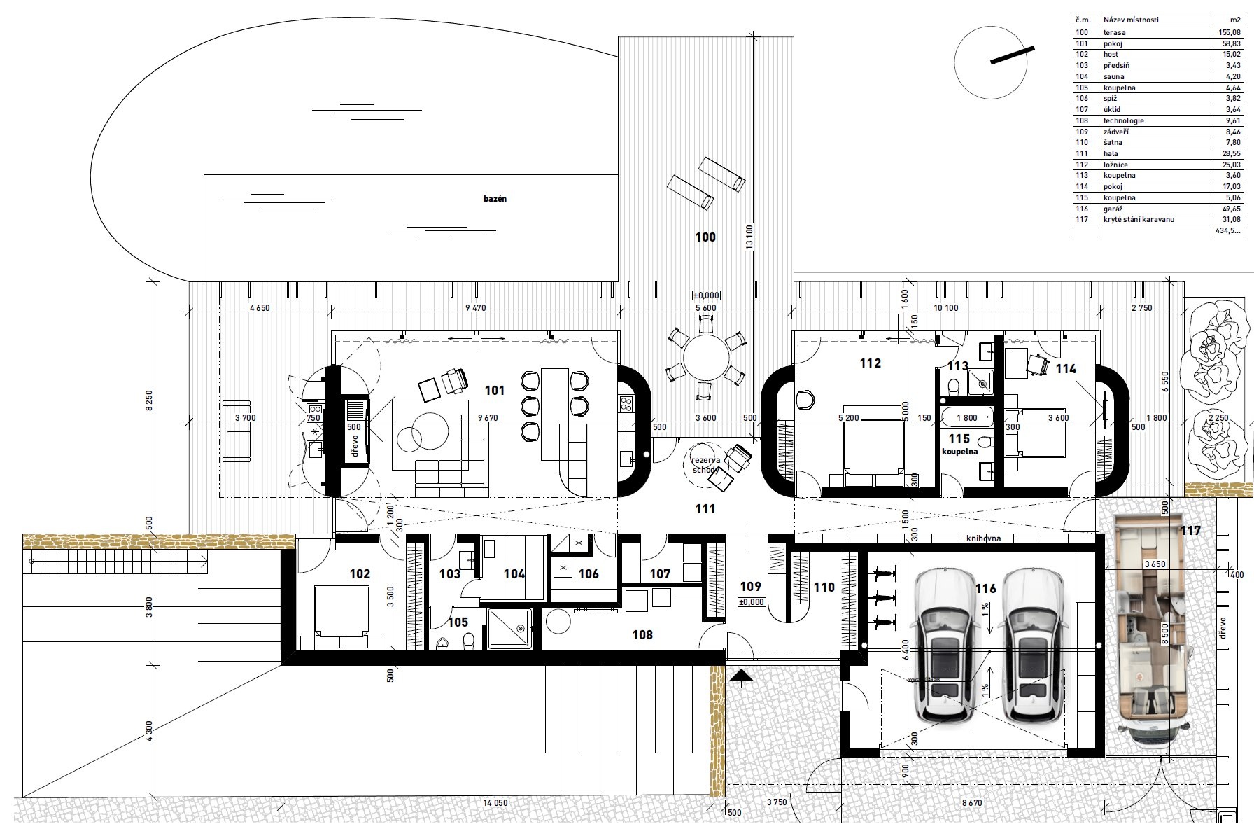
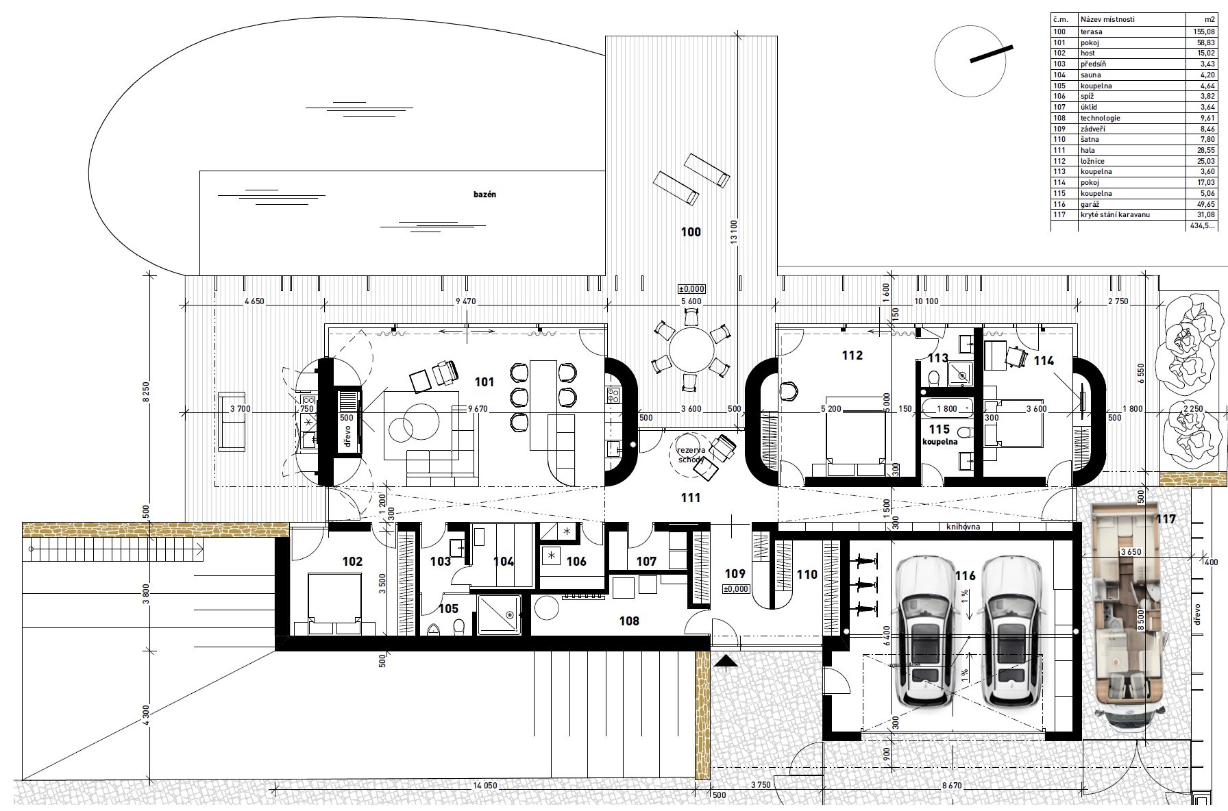
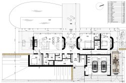
The offer includes an approved project for a detached family house intended for permanent living. The architectural design reflects the latest trends – the house is designed as a single-storey building with a walkable green roof and a 4+kk layout with a total area of 435 m². It includes a spacious terrace, sauna, biotope, garage for two cars and a large covered parking space.

The construction combines brick technology with steel elements, and the facades use natural stone and wood. The western glass facade connects the interior with the exterior and is protected by vertical wooden slats, which also reflect the aesthetics of a golf clubhouse. The house includes a heat pump, an extensive green roof and a design that emphasises sustainability and comfort. The plot has a connection to the municipal water supply and electricity. More information and options are available on request. According to the zoning plan, the land allows for the construction of a two-storey building plus a residential attic with a coefficient of 0.4.

The village of Kácov, located in the picturesque Posázaví region (Kutná Hora district), is a sought-after location for lovers of peace, nature and an active lifestyle. The land is directly adjacent to the Panorama Golf Resort, one of the most prestigious golf courses in the Czech Republic. The resort offers top-class sports facilities, several courts for various sports, a wellness centre, and indoor and outdoor swimming pools.

The surrounding area offers beautiful views, forests, the Sázava River and historical monuments, including Kácov Castle and a Baroque church. The village has all basic amenities: shops, restaurants, a school and train connections.Transport links are excellent – just 5 minutes from the D1 motorway exit and approximately 35 minutes' drive from Prague.

This property is an ideal opportunity for those looking to combine quality living with nature and sport. The location is enjoying growing interest and the supply of similar plots is very limited.

Property parameters

Order number

N7678

Price

9 980 000 CZK

Address

Kácov, Kutná Hora, Central Bohemia

Type

Lands

Category

Housing

Land area

2 010 m2