Sale

Sale of a duplex 3+1/T, 132 sqm, in the project Sokolovská 126, Prague 8 - Karlín

132 m2 Sokolovská, Praha 8 - Karlín Sold

About real estate

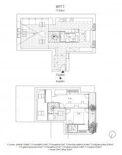
We offer for sale a brand new duplex apartment 3+1 with a floor area of 113.6 sqm with a terrace of 7.9 sqm in a sought-after location in Prague 8 in Karlín. The apartment with two bathrooms is situated on the 5th floor of a Neo-Renaissance apartment building after complete reconstruction with an emphasis on preserving the original historical elements, thus offering a high standard of living with a unique atmosphere.

A spacious hallway with a window to the staircase connects to the living room with kitchen and dining room. The individual spaces are separated by a staircase tube and a bathroom, which allows the space to be used separately. The floor is glazed as much as possible so that sunlight reaches the highest part of the apartment. A glass-enclosed study with a curtain allows you to be in contact with the apartment, but still have the possibility of peace. The children's room is designed in the same way. The bed behind the chimney with a view into the living room is a playful solution not only for small children. Both the bedroom and the children's room have a terrace facing the courtyard.

Three-layer wooden parquet and seamless rubber floors in the living rooms. Travertine stone tiles in the entrance hall. The bathrooms have cast terrazzo, stone tiles and travertine tiles. Concrete sink, Vitra, Kartell, Grohe and Kaldewei fittings. The heating is underfloor in all rooms (separately regulated), the source is the Viesmann Vitodens gas condensing boiler. In each living room there is a multisplit air conditioning. The windows are wooden and aluminium with triple glazing, large-format Solara studio windows, Roto roof windows. Height of ceilings in living rooms 260 - 415 cm. The construction system is designed using a steel-concrete horizontal load-bearing structure, vertical load-bearing structures are in combination of Porotherm Aku 250mm thick and steel columns. In the interior, the steel and original wooden elements of the historical roof truss are admitted. The apartment has a cellar (10,63 sqm). The house has a new elevator for up to 7 people.

Karlín is one of the most sought after and exclusive locations, as evidenced by the prevailing architecturally and historically extremely valuable tenement buildings. Despite the city centre itself, it is a quiet residential area with a significant proportion of greenery. The location within the city is ideal in terms of transport accessibility and amenities. Right in front of the house there is a tram stop Urxova, within walking distance of metro station B - Křižíkova or Invalidovna. In the vicinity there are kindergartens and primary schools, many restaurants, cafes and opportunities for cultural and sports activities. For relaxation and recreation, you can use, among others, Kaizl or Sudek's orchards, Lyčkovo Square, Vítkov Park or the Vltava River embankment.

Energy efficiency B - very economical.

Property parameters

Order number

S126-1

Price

Sold

Address

Sokolovská, Praha 8 - Karlín

Type

Apartments

Disposition

3 + kitchen

Usable area

132 m2

All parameters

Project detail

The order Layout Floor Usable area Living area Terrace / Balcony / Loggia Garden Price
S126-1 3 + kitchen 5th floor 132 m2 114 m2 8 m2 / No / No No Sold Detail
S126-3 3 + kitchenette 5th floor 115 m2 102 m2 5 m2 / No / No No Sold Detail
S126-5 6 and more 5th floor 260 m2 233 m2 5 m2 / No / No No Sold Detail

Drag for more items