Sale

Sale of a modern apartment 4+kk/T, 132 m², Kaštela, Croatia

132 m2 Kastela, Croatia 497 000 EUR / 12 116 860 CZK

About real estate

We are offering for sale a spacious 132 m² penthouse in a new residential project, which is being built in a quiet location in the town of Kaštela. The apartment is located on the top floor of a modern building and, thanks to its location in a gated complex, offers future owners privacy, security, and maximum comfort. The main attraction is the spacious terrace with a hot tub, which is the ideal place to relax.

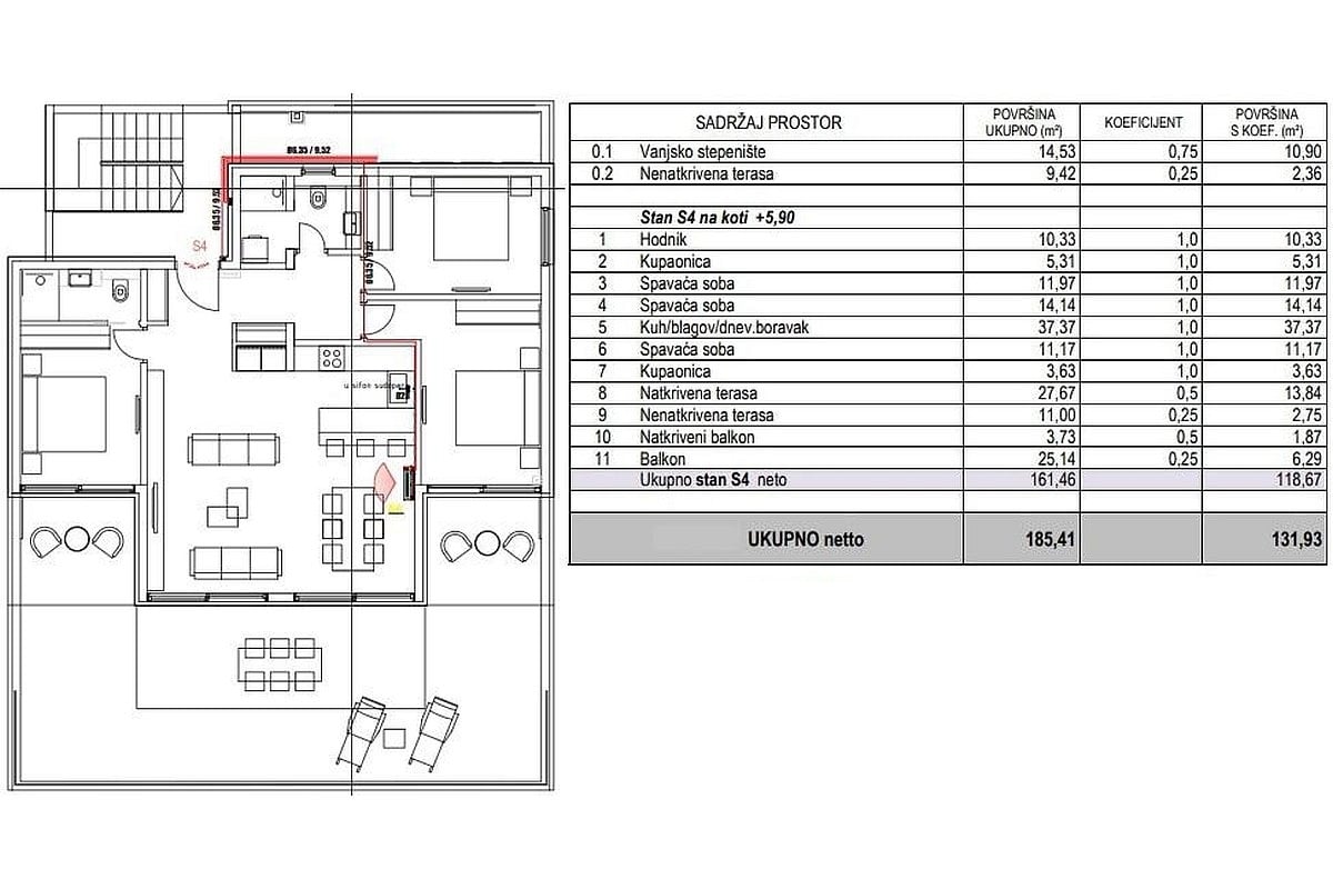
The layout of the apartment includes a spacious living room with a kitchen and dining area, three bedrooms, two bathrooms, an entrance hall, and a balcony. The price also includes two parking spaces in the underground garage and a cellar, which underlines the practical value of the property.

The residential building itself is designed to a high standard – reinforced concrete construction, high-quality facade insulation, and underfloor heating in the bathrooms guarantee a long service life, low operating costs, and a high level of living comfort.

This modern penthouse thus represents an attractive opportunity to acquire prestigious seaside living, which will also be an excellent investment for the future.

Property parameters

Order number

N7758

Price

497 000 EUR / 12 116 860 CZK

Address

Kastela, Croatia

Type

Apartments

Disposition

4 + kitchenette

Usable area

132 m2

All parameters