Sale

For sale 3-bedroom house (112 m²) on a 948 m² lot, Vysoká Pec near Bohutín - Příbram

112 m2 Bohutín, Vysoká Pec, Příbram, Central Bohemia 11 990 000 CZK

About real estate

We are offering for sale a detached bungalow-style family home in the quiet neighborhood of Vysoká Pec near Bohutín, in the Příbram district.

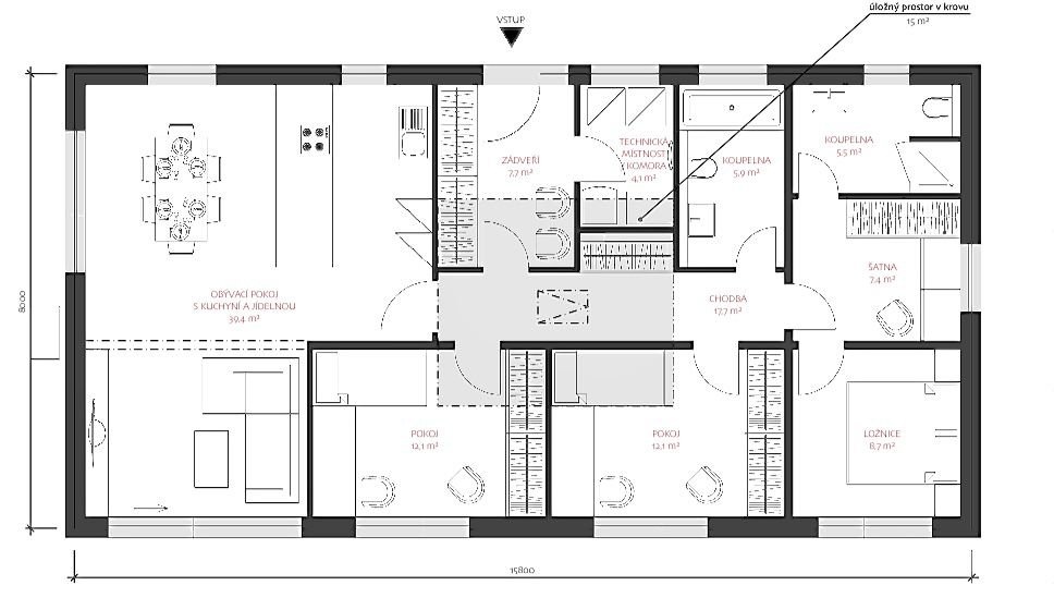
The 4+kk home, with a usable area of 112 m², features a practical and airy interior designed with an emphasis on the comfort of family living.
The main living area is connected to the kitchenette and provides direct access to the garden, which has a total area of 948 m² and offers plenty of privacy and space for relaxation, family activities, or further customization according to your own ideas.
The property is finished to a basic standard, including finished floors, bathrooms, a kitchen unit, and exterior blinds, allowing for immediate occupancy with the option to refine details according to the new owner’s individual preferences.

Modern and energy-efficient operation of the house is ensured by a heat pump combined with a heat recovery system, which guarantees low operating costs while providing a healthy and comfortable indoor environment year-round.

The Vysoká Pec u Bohutína neighborhood is situated in a pleasant setting on the edge of the Brdy forests and offers an ideal combination of peaceful living close to nature and good access to the city. The nearby town of Příbram offers a full range of amenities, including schools, kindergartens, shops, healthcare facilities, and sports activities. Transportation is provided by bus, with the trip to Prague taking approximately 50 minutes. This property is an attractive choice for family living as well as for those seeking a quieter alternative to city life.

For more information or to schedule a personal tour, please don’t hesitate to contact us.

Property parameters

Order number

N7953

Price

11 990 000 CZK

Address

Bohutín, Vysoká Pec, Příbram, Central Bohemia

Type

Houses

Category

Family House

Usable area

112 m2

All parameters