Sale

Luxury villa for sale, 590 m² with private wellness area, on a plot of 2,287 m², Průhonice, Prague-West

590 m2 Růžová, Průhonice, Praha-západ, Central Bohemia on request

About real estate

We are offering for sale an exclusive villa in one of the most prestigious residential locations – Průhonice near Prague. The elegant Villa Lumière, with a total usable area of 590 m² and a plot of 2,287 m², is located just a few steps from Průhonice Park and is literally a home full of light. The timeless architecture was created under the supervision of a renowned architect and designer. It combines top-quality materials, precise craftsmanship, and a harmonious interior based on a combination of natural materials such as wood, glass, and stone.


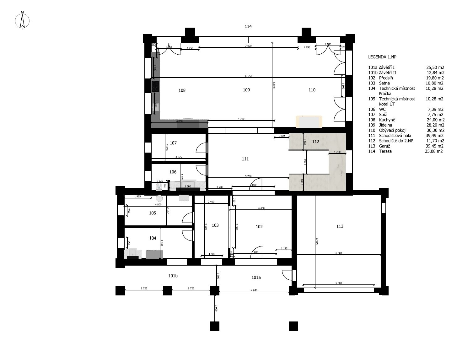
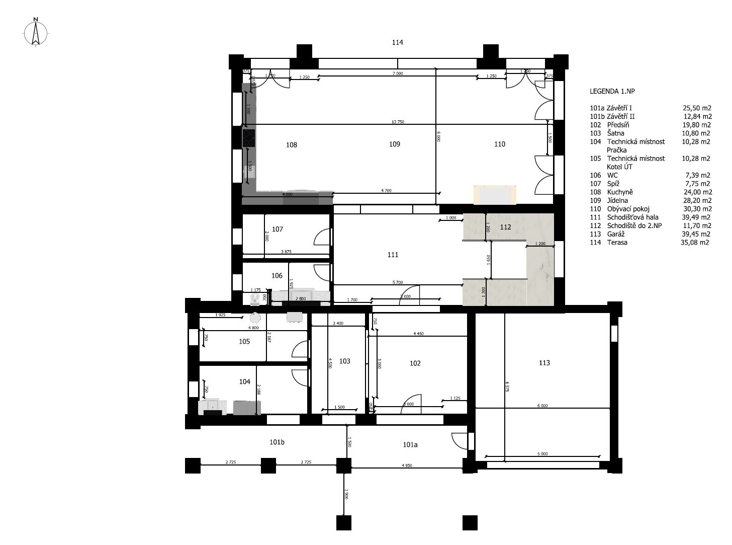
The entrance area consists of a foyer and a spacious hall with storage space and glass sliding doors, which flows smoothly into an open social area. The dominant feature is a premium SieMatic kitchen with Miele appliances, an adjoining dining room with a solid Wedge table, and a generous living room with a modern fireplace. The entire space is illuminated by large French windows, which also connect the interior with the garden and give the rooms an exceptional airiness. The atmosphere is enhanced by handmade, custom-made crystal chandeliers. The first floor also features a utility room, laundry room, pantry, and separate toilet.


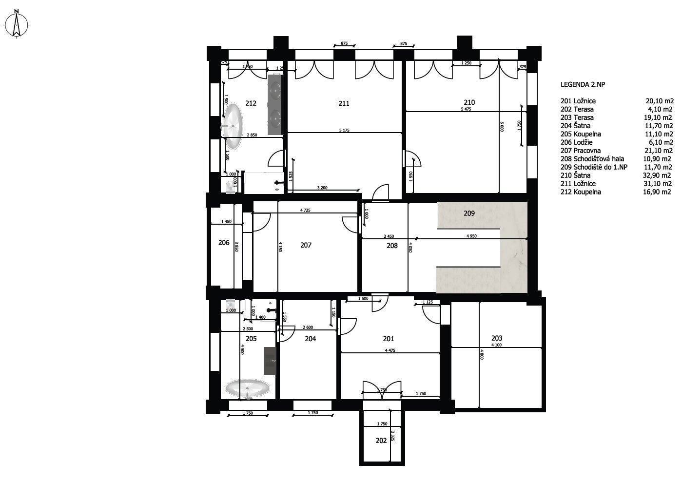
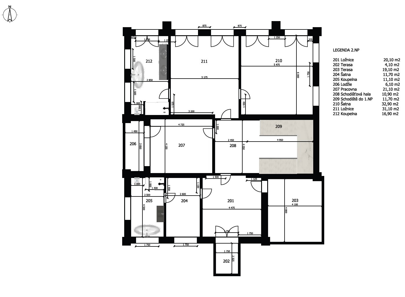
The first floor has two master bedrooms, each with its own dressing room, as well as two luxurious bathrooms equipped with Gessi sanitary ware, a freestanding bathtub, and a walk-in shower. There is also a study (which can be used as an additional bedroom) and two terraces, which provide space for relaxation and work in privacy. The layout can be modified to accommodate an additional bedroom. The house is equipped with a smart home system, air conditioning, underfloor heating, and electronically controlled outdoor blinds and interior curtains. For maximum comfort, a study for the installation of an elevator has been prepared. Security is ensured by an extensive camera system and security equipment. The property also includes a garage for two cars, and four more cars can be parked in front of the house on a paved area or under a roof structure.

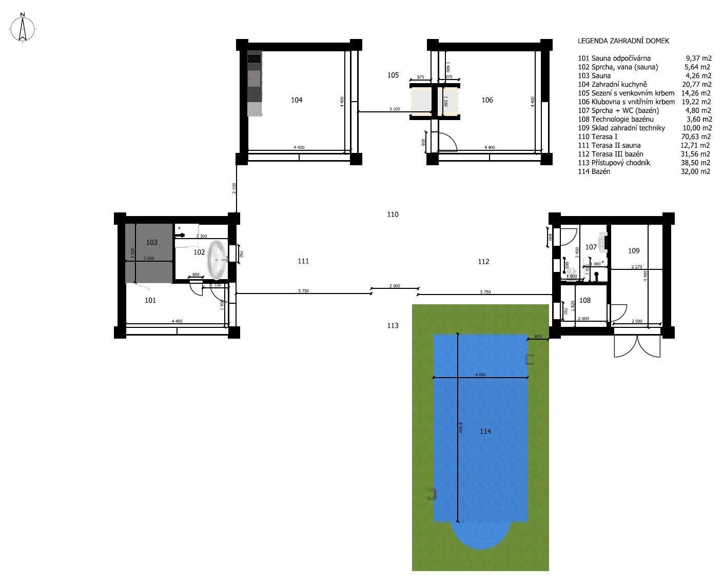
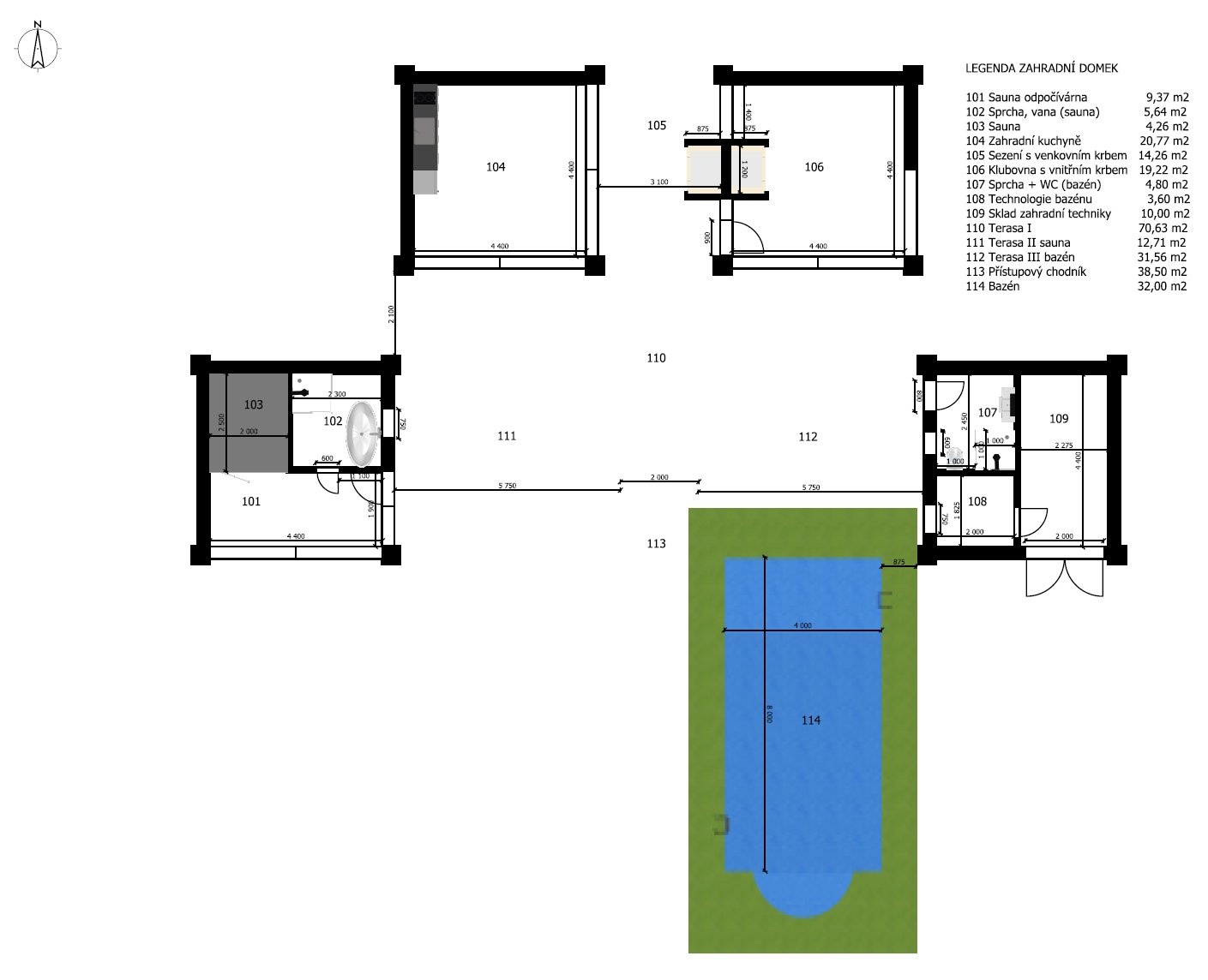
The property includes a private wellness area with a heated swimming pool (8x4m), a Finnish sauna, a summer kitchen, and a stylish relaxation room with a moss wall and a fireplace, which offers the perfect setting for relaxation and social gatherings.

Průhonice is one of the most sought-after municipalities in the Prague area thanks to its excellent transport links to the city center and the D1 motorway. The location is sought after by the most demanding clientele for its complete civic amenities, quality restaurants and cafes, school, kindergarten, health services, and leisure activities. The dominant feature is the historic Průhonice Castle with its castle park, which offers a unique environment for sports and relaxation.

Property parameters

Order number

N7821

Price

on request

Address

Růžová, Průhonice, Praha-západ, Central Bohemia

Type

Houses

Category

Family House

Usable area

590 m2

All parameters