Sale

Sale of a low-energy family house 5+1, 203 m², land 706 m², Kvilda, Šumava

203 m2 Kvilda, Prachatice, South Bohemia Region 18 900 000 CZK

About real estate

We are exclusively offering for sale a sunny, low-energy family house with a usable area of 203 m², situated in a quiet and sought-after residential area of the mountain village of Kvilda, in the very heart of the Šumava National Park. The house offers a comfortable combination of modern living and natural harmony.

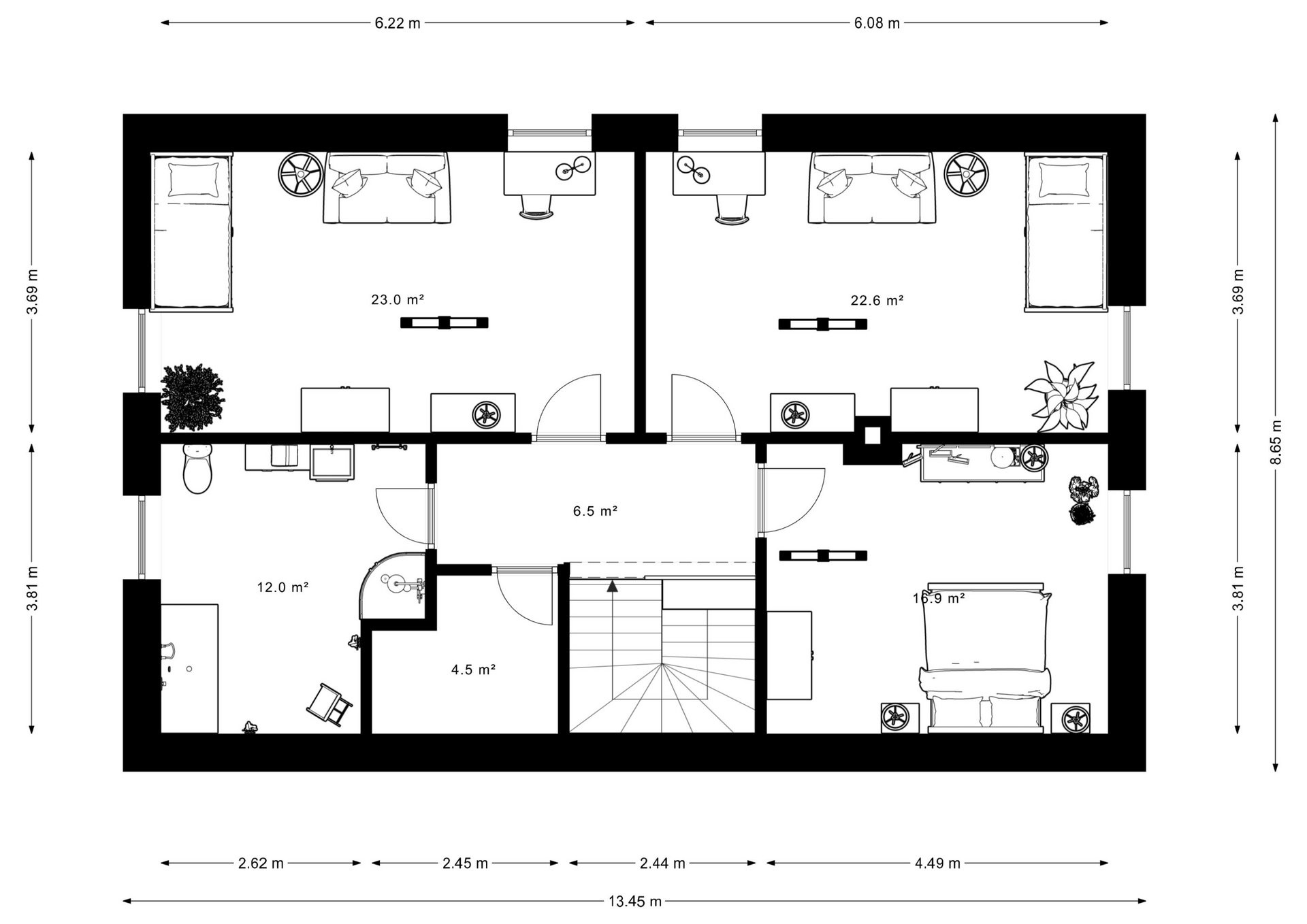
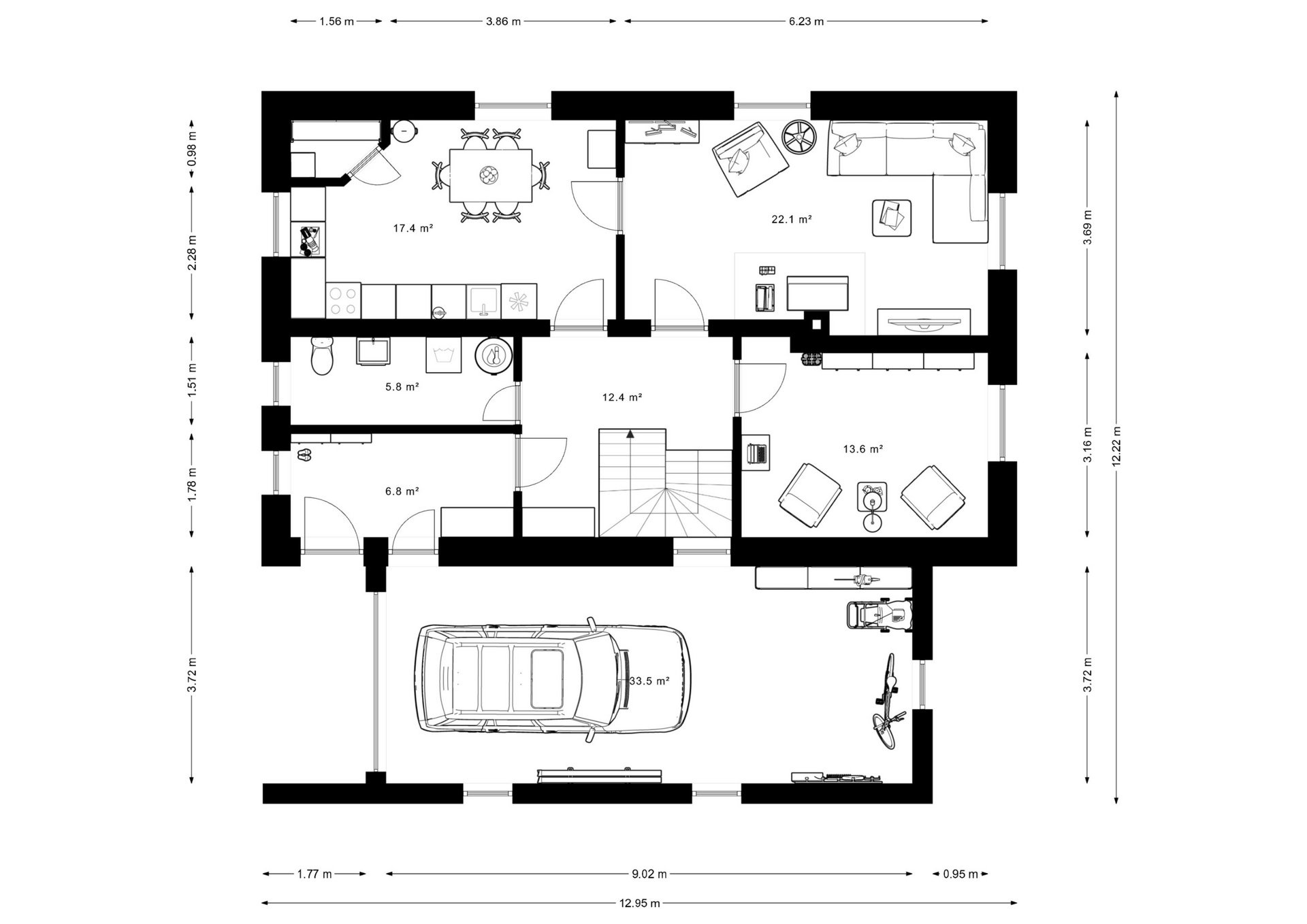
The single-story family house with a habitable attic has a floor area of 151 m², a spacious garage of 32 m², and an attic storage space of 20 m². On the ground floor there is an entrance hall, a hallway, a kitchen with a dining area, a bright living room with a tiled fireplace, a separate study and a toilet with a sink and a washing machine. The attic offers a quiet retreat with a bedroom and two further rooms with views of the countryside, a dressing room/storage room, a bathroom with a bathtub, massage shower, washbasin and toilet, and an adjoining hallway.

The house was approved for occupancy in 2014 and was built with an emphasis on quality, low energy consumption, and long-term operational efficiency. The building is constructed from Heluz brick blocks for low-energy and passive houses, the windows are fitted with triple glazing with aluminum cladding, the aluminum entrance doors are made from a high-quality German Heroal system, and the Lomax garage doors are also aluminum. The roof is covered with Bramac roofing. According to the energy performance certificate, the house is classified as category "B" – a very energy-efficient building, with the possibility of future installation of solar panels and transition to category "A".

The property is connected to municipal water and sewerage systems. Heating is provided by electric underfloor heating in combination with a wood-burning stove, which distributes heat to the rooms. Water is heated by an electric boiler. The house is connected to high-speed internet, television, and radio via cable (Cetin). The garage has electrical wiring for a future charging station (wallbox). The total monthly costs for year-round use of the house are currently around CZK 5,000.

The property is sold including equipment according to the current photo documentation. Technical facilities are also available for year-round maintenance of the access road on the property and the garden. The garden is planted with mature trees along the fence line, which ensure pleasant privacy when staying on the property. A barbecue and smokehouse are available for moments of relaxation and outdoor seating.

The house is suitable for both permanent living and occasional recreation.

The village of Kvilda, the highest village in the Czech Republic, is a popular and sought-after tourist center, famous as a "climatic spa." In addition to a wide range of amenities (municipal office, post office, grocery store, bakery, pastry shop, restaurant, library, information center, brewery), it also offers sports activities—ski lifts, tennis courts, volleyball and squash courts, and a playground. The village is connected all year round to a network of groomed cross-country ski trails, which in summer turn into popular cycle paths leading through the beautiful landscape of the Šumava National Park.

Property parameters

Order number

N7719

Price

18 900 000 CZK

Address

Kvilda, Prachatice, South Bohemia Region

Type

Houses

Category

Family House

Usable area

203 m2

All parameters