Sale

Sale of an apartment 1+kt/L, 42,4 sqm, in luxury mountain project Apartments Albeřice, Giant Mountains - Horní Maršov

39 m2 Horní Maršov, Dolní Albeřice, Trutnov, Hradec Králové Region 6 980 000 CZK

Půdorysy

About real estate

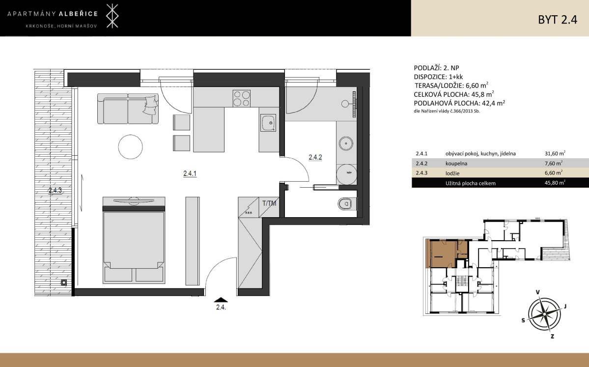
In the newly built project Apartments Albeřice we offer for sale an apartment with a layout of 1+kt and an area of 39.2 sqm with a loggia of 6.6 sqm - a total of 45.8 sqm. The apartment is located on the 1st floor of the project and is oriented NE. It is furnished to a high standard, which can be expanded to a higher standard, especially in terms of the extent of lining the walls and ceilings of individual rooms with rustic aged wood. If interested, we can arrange for the apartments to be furnished with kitchens and furniture from a renowned design studio in various price ranges. The apartment includes storage space in a secure separate storage room. The apartment comes with a covered parking space for CZK 450,000 - not included in the price of the apartment. There is also an outdoor sauna and a shared ski storage room on the 1st floor with lockable boxes.

This unique project – the luxurious Albeřice Mountain Apartments – offers originality and high quality in an intimate, luxurious mountain "cottage" with only eleven apartments, with a maximum of three apartments per floor, except for the ground floor. It is located in the picturesque village of Dolní Albeřice, which is easily accessible all year round and is one of the few villages that has retained its original Krkonoše character. The project achieves exceptional energy efficiency class A.

The architects of the Morix studio participated in the creation of the new residence, which is intended for lovers of privacy, original architecture, and distinctive style. The apartments have a well-thought-out layout and an original interior design in a modern rustic mountain style with balconies or terraces and a front garden on the ground floor. Parking is covered by the house and there is plenty of storage space for bicycles, snowboards, and skis for the whole family in the cellars and in the shared ski room with lockable boxes. If you're interested, we can arrange apartment cleaning and short-term rental management. The building has an elevator, high-standard common areas, heat pump heating, and outdoor blinds and a SMART control system as standard features in the apartments.

The Albeřice Apartments project will be built in Dolní Albeřice – 4 km north of Horní Maršov on the site of a former dairy and later a guesthouse, in peaceful, unspoiled nature, completely away from the tourist crowds, yet only a 15-minute drive from the ski slopes of the mountain resorts of Pec pod Sněžkou, Svoboda nad Úpou, and Jánské Lázně. A year-round maintained asphalt road leads right to the door. There is a family ski lift near the project, and hiking and cycling trails lead right past the door of the house – for example, you can reach the cable car to Sněžka or Horní Malá Úpa and the Trautenberk brewery in Horní Maršov in just an hour by bike.

The visualizations are illustrative; the actual construction may differ.

Property parameters

Order number

AA-4

Price

6 980 000 CZK

Type

Disposition

Usable area

39 m2

All parameters

Project detail

The order Layout Floor Usable area Floor area Terrace / Balcony / Loggia Garden Price
AA-1 2 + kitchenette ground floor 58 m2 63 m2 36 m2 / No / No No 9 490 000 CZK Detail
AA-2 2 + kitchenette ground floor 58 m2 63 m2 67 m2 / No / No No 9 990 000 CZK Detail
AA-3 3 + kitchenette ground floor 146 m2 156 m2 176 m2 / No / No Yes (187 m2) Reserved Detail
AA-4 1 + kitchenette 1st floor 39 m2 42 m2 No / No / 7 m2 No 6 980 000 CZK Detail
AA-5 2 + kitchenette 1st floor 48 m2 54 m2 No / No / 11 m2 No 9 480 000 CZK Detail
AA-6 3 + kitchenette 1st floor 143 m2 154 m2 No / 21 m2 / 2 m2 No 22 490 000 CZK Detail
AA-7 2 + kitchenette 1st floor 59 m2 54 m2 No / No / 11 m2 No Sold Detail
AA-8 2 + kitchenette 2nd floor 48 m2 53 m2 No / No / 9 m2 No 9 680 000 CZK Detail
AA-9 3 + kitchenette 2nd floor 144 m2 154 m2 No / 22 m2 / 2 m2 No 24 490 000 CZK Detail
AA-10 3 + kitchenette 2nd floor 92 m2 102 m2 No / No / 20 m2 No 16 980 000 CZK Detail
AA-11 3 + kitchenette 3rd floor 98 m2 103 m2 No / No / 14 m2 No Sold Detail

Drag for more items