Play video
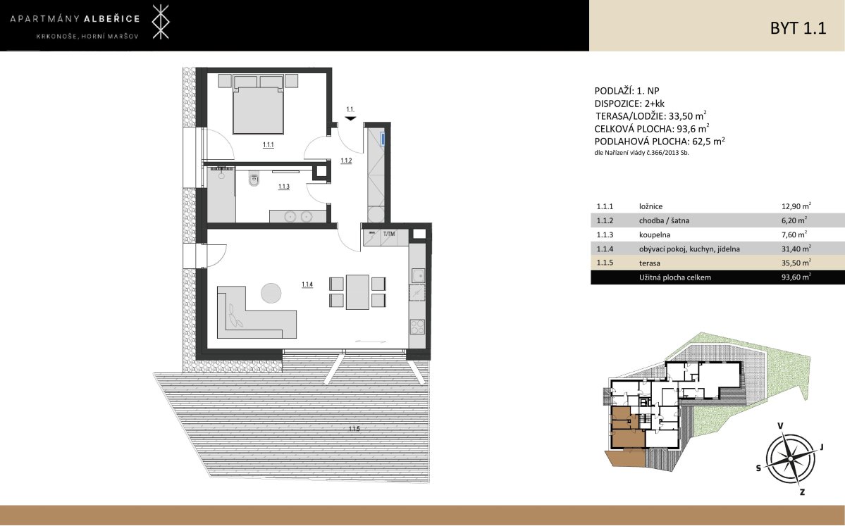
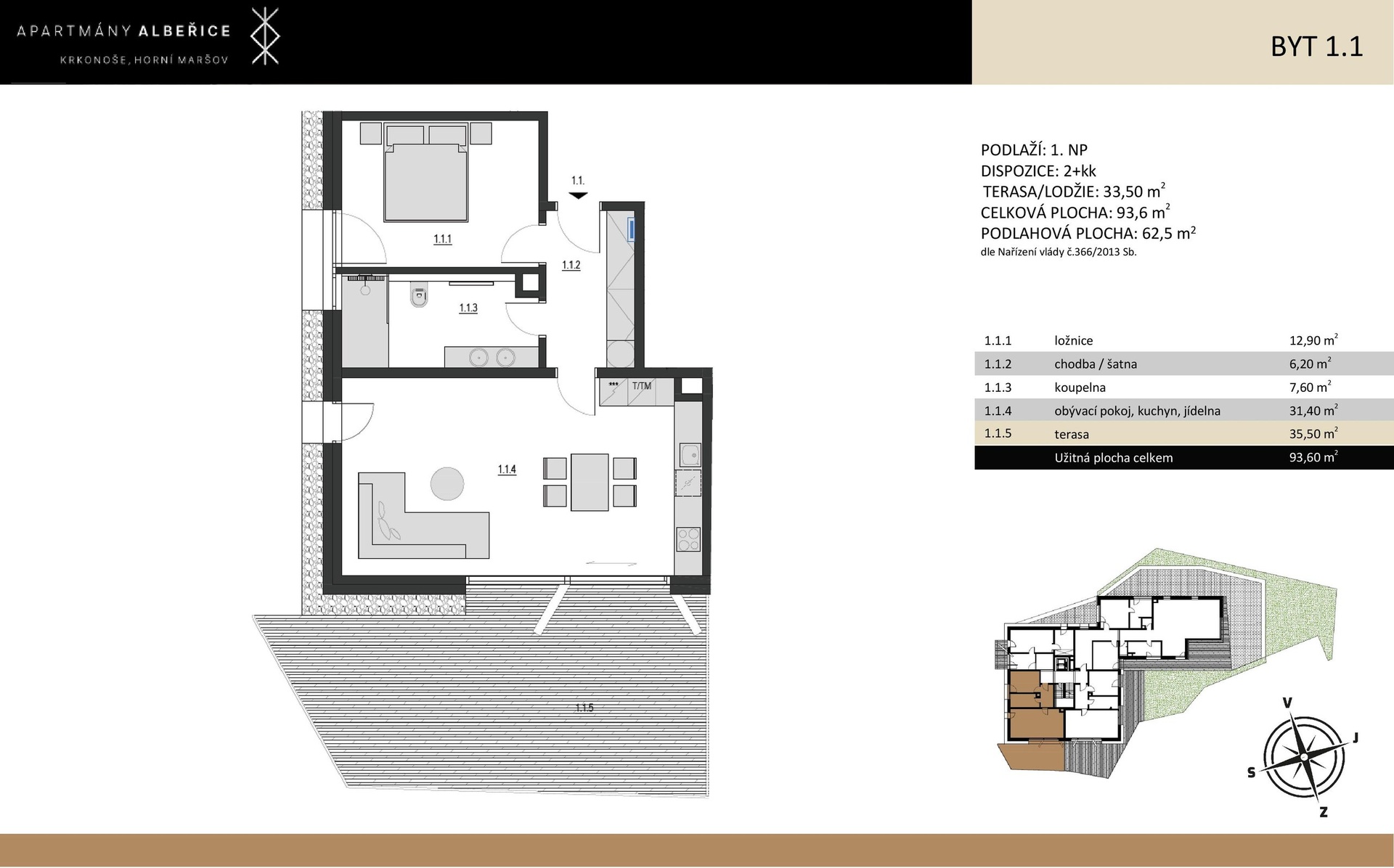
In the newly built project Apartments Albeřice we offer for sale an apartment with 2+kt and an area of 58.1 sqm with a terrace of 35.5 sqm - a total of 93.6 sqm . The apartment is located on the ground floor of the project and is oriented to the NW. It is furnished to a high standard, which can be expanded to a higher standard, especially in terms of the extent of lining the walls and ceilings of individual rooms with rustic aged wood. If interested, we can arrange for the apartments to be furnished with kitchens and furniture from a renowned design studio in various price ranges. The apartment includes storage space in a secure separate storage room. The apartment comes with a covered parking space for CZK 450,000 - not included in the price of the apartment. There is also an outdoor sauna and a shared ski storage room on the 1st floor with lockable boxes.
This unique project – the luxurious Albeřice Mountain Apartments – offers originality and high quality in an intimate, luxurious mountain "cottage" with only eleven apartments, with a maximum of three apartments per floor, except for the ground floor. It is located in the picturesque village of Dolní Albeřice, which is easily accessible all year round and is one of the few villages that has retained its original Krkonoše character. The project achieves exceptional energy efficiency class A.
The architects of the Morix studio participated in the creation of the new residence, which is intended for lovers of privacy, original architecture, and distinctive style. The apartments have a well-thought-out layout and an original interior design in a modern rustic mountain style with balconies or terraces and a front garden on the ground floor. Parking is covered by the house and there is plenty of storage space for bicycles, snowboards, and skis for the whole family in the cellars and in the shared ski room with lockable boxes. If you're interested, we can arrange apartment cleaning and short-term rental management. The building has an elevator, high-standard common areas, heat pump heating, and outdoor blinds and a SMART control system as standard features in the apartments.
The Albeřice Apartments project will be built in Dolní Albeřice – 4 km north of Horní Maršov on the site of a former dairy and later a guesthouse, in peaceful, unspoiled nature, completely away from the tourist crowds, yet only a 15-minute drive from the ski slopes of the mountain resorts of Pec pod Sněžkou, Svoboda nad Úpou, and Jánské Lázně. A year-round maintained asphalt road leads right to the door. There is a family ski lift near the project, and hiking and cycling trails lead right past the door of the house – for example, you can reach the cable car to Sněžka or Horní Malá Úpa and the Trautenberk brewery in Horní Maršov in just an hour by bike.
The visualizations are illustrative; the actual construction may differ.
Order number
AA-1
Price
9 490 000 CZK
Type
Disposition
Usable area
58 m2
| The order | Layout | Floor | Usable area | Floor area | Terrace / Balcony / Loggia | Garden | Price | |
|---|---|---|---|---|---|---|---|---|
| AA-1 | 2 + kitchenette | ground floor | 58 m2 | 63 m2 | 36 m2 / No / No | No | 9 490 000 CZK | Detail |
| AA-2 | 2 + kitchenette | ground floor | 58 m2 | 63 m2 | 67 m2 / No / No | No | 9 990 000 CZK | Detail |
| AA-3 | 3 + kitchenette | ground floor | 146 m2 | 156 m2 | 176 m2 / No / No | Yes (187 m2) | Reserved | Detail |
| AA-4 | 1 + kitchenette | 1st floor | 39 m2 | 42 m2 | No / No / 7 m2 | No | 6 980 000 CZK | Detail |
| AA-5 | 2 + kitchenette | 1st floor | 48 m2 | 54 m2 | No / No / 11 m2 | No | 9 480 000 CZK | Detail |
| AA-6 | 3 + kitchenette | 1st floor | 143 m2 | 154 m2 | No / 21 m2 / 2 m2 | No | 22 490 000 CZK | Detail |
| AA-7 | 2 + kitchenette | 1st floor | 59 m2 | 54 m2 | No / No / 11 m2 | No | Sold | Detail |
| AA-8 | 2 + kitchenette | 2nd floor | 48 m2 | 53 m2 | No / No / 9 m2 | No | 9 680 000 CZK | Detail |
| AA-9 | 3 + kitchenette | 2nd floor | 144 m2 | 154 m2 | No / 22 m2 / 2 m2 | No | 24 490 000 CZK | Detail |
| AA-10 | 3 + kitchenette | 2nd floor | 92 m2 | 102 m2 | No / No / 20 m2 | No | 16 980 000 CZK | Detail |
| AA-11 | 3 + kitchenette | 3rd floor | 98 m2 | 103 m2 | No / No / 14 m2 | No | Sold | Detail |

