Prodej

Prodej luxusní vily 590 m² s privátní wellness zónou, na pozemku 2 287 m², Průhonice, Praha-západ

590 m2 Růžová, Průhonice, Praha-západ, Středočeský kraj na vyžádání

O nemovitosti

Nabízíme k prodeji exkluzivní vilu v jedné z nejprestižnějších rezidenčních lokalit – v Průhonicích u Prahy. Elegantní Villa Lumière, o celkové užitné ploše 590 m² s pozemkem 2 287 m², je situována jen pár kroků od Průhonického parku a je doslova domovem plným světla. Nadčasová architektura vznikla pod dohledem renomovaného architekta a designéra. Spojuje špičkové materiály, precizní řemeslné zpracování a harmonický interiér, který je založený na kombinaci přírodních materiálů, jako je dřevo, sklo a kámen.

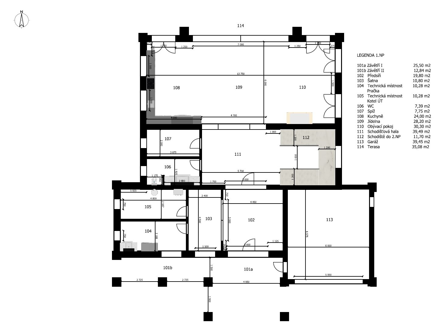
Vstupní část tvoří předsíň a prostorná hala s úložnými prostory a skleněnými posuvnými dveřmi, která plynule přechází do otevřeného společenského prostoru. Dominantou je prémiová kuchyně SieMatic se spotřebiči Miele, navazující jídelna s masivním stolem Wedge a velkorysý obývací pokoj s moderním krbem. Celý prostor prosvětlují velkoformátová francouzská okna, jež zároveň propojují interiér se zahradou a dodávají místnostem výjimečnou vzdušnost. Atmosféru podtrhují ručně vyráběné křišťálové lustry na míru. V prvním podlaží se dále nachází technická místnost, prádelna, spíž a samostatná toaleta.

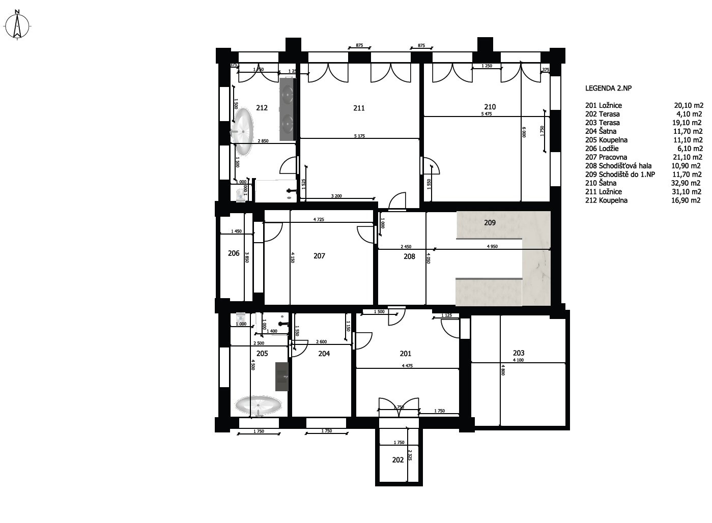
V prvním patře se nacházejí dvě hlavní ložnice, každá s vlastní šatnou, dále dvě luxusní koupelny vybavené sanitou Gessi, volně stojící vanou či walk-in sprchou. Součástí je také pracovna (možné užívat jako další ložnici) a dvě terasy, které poskytují prostor pro odpočinek i práci v soukromí. Pro potřeby další ložnice je možné provést dispoziční úpravu. Dům je vybaven smart home systémem, klimatizací, podlahovým vytápěním a elektronicky ovládanými venkovními žaluziemi i interiérovými závěsy. Pro maximální pohodlí je připravena studie na instalaci výtahu. Bezpečnost zajišťuje rozsáhlý kamerový systém i zabezpečovací zařízení. Součástí nemovitosti je rovněž garáž pro dva vozy, další čtyři auta je možné parkovat před domem na zpevněné ploše či realizovat konstrukční zastřešení.

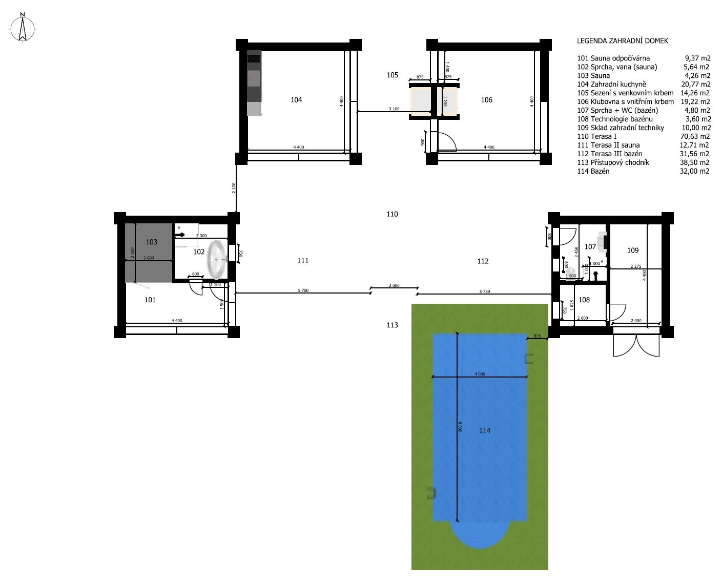
Součástí pozemku je privátní wellness zóna s vyhřívaným bazénem (8x4m), finskou saunou, letní kuchyní a stylovou odpočinkovou místností s mechovou stěnou a krbem, která nabízí perfektní zázemí pro relaxaci i společenské setkávání.

Průhonice patří k nejvyhledávanějším obcím v okolí Prahy díky skvělé dopravní dostupnosti do centra či dálnice D1. Lokalita je vyhledávána nejnáročnější klientelou pro svou kompletní občanskou vybavenost, kvalitní restaurace i kavárny, školu, školku, zdravotní služby i volnočasové aktivity. Dominantou je historický Průhonický zámek se zámeckým parkem, který nabízí jedinečné prostředí pro sport i relaxaci.

Parametry nemovitosti

Číslo zakázky

N7821

Cena

na vyžádání

Adresa

Růžová, Průhonice, Praha-západ, Středočeský kraj

Druh

Domy

Kategorie

Rodinný

Užitná plocha

590 m2

Všechny parametry