Pronájem

Pronájem bytu 3+kk/B/PS, 76 m2, Praha-západ - Hostivice

76 m2 Okrajová, Hostivice, Praha-západ, Středočeský kraj Pronajato

O nemovitosti

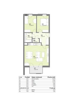
Nabízíme k pronájmu byt 3+kk s balkonem o užitné ploše 76 m2 v bytovém projektu Bažantnice, na jižním okraji Hostivice, Praha-západ. Byt je situován ve 2. podlaží novostavby z roku 2019. Součástí je vlastní parkovací místo před domem a sklep. Byt se pronajímá nevybavený.

Dispozice zahrnují vstupní chodbu s vestavěnými skříněmi, obývací pokoj s kuchyňským koutem, dvě ložnice, koupelnu s vanou a samostatně oddělenou toaletu. Kuchyň je vybavena všemi spotřebiči – varná deska, digestoř, horkovzdušná trouba, myčka a lednice s mrazákem. Z obývací části je vstup na balkon (5 m2), který je orientován na západ. Zděný sklep je umístěn v přízemí domu. Kvalitní dřevěná okna s izolačním dvojsklem, předokenní posuvné dřevěné žaluzie, řízené větrání vzduchu, domácí telefon s elektrickým vrátným.

Architektura budovy odráží soulad lokality s přírodou. Krásné a komfortní bydlení s důrazem na funkčnost, energetickou nenáročnost a soukromí (pouze dva byty na patře). Ideální pro rodiny s dětmi, dětské hřiště přímo před domem, dostatečná kapacita parkovacích míst pro návštěvy, spousta cyklostezek pro aktivní vyžití. Klidná část města v blízkosti chráněného přírodního území Hostivické rybníky. Veškerá občanská vybavenost v okolí. Výborná dostupnost autem přímo z Pražského okruhu a D7, napojení na D5, D1 a další rychlostní silnice. Příměstská autobusová doprava z hlavního města Prahy. Nedaleko je zastávka MHD linek č. 306, 607 směr Zličín nebo vlaková stanice Hostivice – Sadová. Letiště Václava Havla je vzdáleno několik kilometrů.

Volný od 01.10.2024

Parametry nemovitosti

Číslo zakázky

N6995

Cena

Pronajato

Adresa

Okrajová, Hostivice, Praha-západ, Středočeský kraj

Druh

Byty

Dispozice

3+kk

Užitná plocha

76 m2

Všechny parametry